TEL(9:00-17:30土日祝休)0269-33-3048
〒381-0401 長野県下高井郡山ノ内町大字平穏2831-17
温泉付きマンション、グラントピア志賀高原8階の物件情報です。
面積は63.54u(19.22坪)で、
明るい色調のフローリングに張替え済みの約17.8帖リビングダイニングが特徴のお部屋です。
もともとはじゅうたんのリビングダイニングと6帖和室の別々お部屋でしたが、1室にリフォームされています。
8階北西向き、南西向き角部屋で、2面採光の明るい部屋向きです。
特に北西側の窓からは北信五岳方面が見える眺めの良いお部屋です。
ミニキッチンのコンロはIH式、ガスはありません。
給湯は深夜電力による電気温水器です。
7.3帖の洋室もじゅうたんからフローリングの洋室にリフォームされています。
洗面台、浴室、トイレはそれぞれ独立した間取りです。
浴室給湯は電気温水器です。
もちろん館内の天然温泉大浴場をご利用いただけます。
※写真や映像に写っております、家具や家電等の内部備品はお引渡し前に搬出いたします。
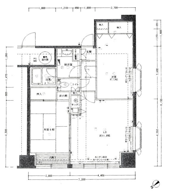
間取りの様子をご覧ください。
※内覧のご希望がありましたら3営業日以上前の御予約をお願い致します。
![]() |
玄関を入ったところ。 玄関にはシューズボックスにできそうな収納などがあります。 |
![]() |
約17.8帖のリビングダイニング。 明るい色調のフローリングにリフォーム済みなのが特徴のお部屋です。 |
![]() |
もともとはじゅうたんのリビングダイニングと6帖和室の別々お部屋でしたが、1室にリフォームされています。 リビングダイニングにはキッチンがあります。 |
![]() |
北西向き、南西向きの2面採光で明るいお部屋です。 |
![]() |
ミニキッチンの様子。 コンロはIH式、給湯は深夜電力による電気温水器です。 ガスはありません。 |
![]() |
リビングダイニングから北西向きの眺望。 北信五岳方面が見える眺めの良いお部屋です。 |
![]() |
元6帖和室だったお部屋。 リビングダイニングと6帖和室の別々お部屋でしたが、1室にリフォームされています。 |
![]() |
押入れ収納、床の間があります。 |
![]() |
押入れ収納の様子。 天井までの高さがある収納です。 |
![]() |
約7.3帖洋室。 こちらもじゅうたん→フローリングにリフォームされています。 南西向きのお部屋です。 |
![]() |
押入れ、クローゼット収納があります。 |
![]() |
押入れ、クローゼット収納の様子。 左側がクローゼット収納、右側が押入れ収納となっています。 |
![]() |
約7.3帖洋室からの眺望。 南西向きで河川敷方面が見えます。 |
![]() |
トイレは独立した間取りです。 トイレ設備もリフォームされています。 |
![]() |
洗面台。 独立した間取りで、大型のものが設置されています。 |
![]() |
浴室。 給湯は深夜電力による電気温水器です。 館内の天然温泉大浴場がご利用いただけます。 |
| 所在地 | 長野県下高井郡山ノ内町平穏3262 |
| 交通 | 長野電鉄「湯田中駅」徒歩4分 上信越自動車道「信州中野IC」車20分 |
| 構造規模 | 鉄骨鉄筋コンクリート造地下1階付10階建/8階部分 |
| 専有面積 | 63.54u(19.22坪) |
| 総戸数 | 101戸 |
| 築年月 | 1992年3月 |
| 引渡し | 引渡時期:相談 設備:現状 残置物:搬出 |
| 駐車場 | 1台有り |
| 管理費 | 31960円 |
| 修繕積立金 | 6400円 |
| 現況 | 使用中 |
| 設備 | 給湯:電気温水器 |
| 取引形態 | 媒介 |
| 管理会社 | 南信ビルサービス株式会社 |
| その他情報 | 令和4年度固定資産税 83500円 水道料は従量制です。 館内の天然温泉大浴場がご利用頂けます。 ※内覧のご希望がありましたら3営業日以上前の御予約をお願い致します。 |
| 取引態様 | 媒介 |
※物件情報の掲載日2022/11/17 最終更新日2023/12/21