TEL(9:00-17:30土日祝休)0269-33-3048
〒381-0401 長野県下高井郡山ノ内町大字平穏2831-17
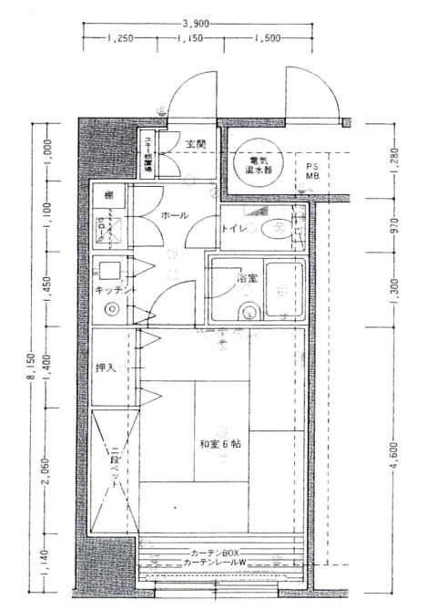
1Kタイプのコンパクトなお部屋で、6帖和室のお部屋、キッチン、トイレの間取りです。
6帖の和室には板間があり、実際には約7.5帖くらいの面積があります。畳は損傷しています。
窓からの眺望は北信五岳方面が見える北西向きで、階層は4階です。
部屋には二段ベッドと押し入れ収納があり、ベッドの上段は折りたたむことができます。
押し入れ収納の中は三段の収納です。
棚は破損しており、結露の傷みがあります。
キッチンはミニキッチンで、コンロはIHです。
お部屋の給湯は深夜電力による電気温水器で、ガスはありません。
1Kタイプでありながら、洗濯機置場があるのが当マンションの特徴です。
キッチンや洗濯機置場には目隠し扉がついており、スッキリと目隠しすることができます。
トイレは独立した間取り。
もちろん館内の天然温泉大浴場をご利用いただけます。
※当物件は複数箇所に傷みや破損、使用感などがございます。
水まわり設備(特に電気温水器)は未点検のため破損している可能性もありますが、そのぶん価格に反映しております。
全面的な改修を前提とした検討を強くお勧めいたします。
![]() |
6帖和室 約1.5帖の板間があり、実際には約7.5帖くらいのスペースです。 |
![]() |
6帖和室 二段ベッドや押し入れ収納があります。 |
![]() |
窓からの眺望 4階、北西向きのお部屋です。 北信五岳方面が見える、眺めの良いお部屋です。 |
![]() |
二段ベッドの様子 上段は折りたたむことができ、下段は引き出し収納があります。 傷みがあります |
![]() |
押入れ収納。 二段ベッドと並んでいる設備です。 |
![]() |
棚は損傷しています。 |
![]() |
結露の傷みがあります。 |
![]() |
畳も損傷しています。 全面的な改修を前提とした検討を強くお勧めいたします。 |
![]() |
キッチン設備の様子。 傷みや破損が見受けられます。 |
![]() |
キッチンシンクの様子。 一部破損しています。 |
![]() |
キッチン床の様子。 使用感、汚れがあります。 |
![]() |
浴室。 館内の天然温泉大浴場もご利用いただけます。 |
![]() |
洗濯機置場。 汚れや使用感があります。 |
![]() |
トイレ |
![]() |
玄関横の収納。 奥行きが浅いです。 |
![]() |
玄関廊下。 汚れや使用感、破損が多くあります。 |
| 所在地 | 長野県下高井郡山ノ内町平穏3262 |
| 交通 | 長野電鉄「湯田中駅」徒歩4分 上信越自動車道「信州中野IC」車20分 |
| 構造規模 | 鉄骨鉄筋コンクリート造地下1階付10階建/4階部分 |
| 専有面積 | 29.34u(約8.87坪) |
| 総戸数 | 101戸 |
| 築年月 | 1992年3月 |
| 引渡し | 引渡時期:相談 設備:現状 残置物:現状 |
| 駐車場 | 敷地内12台、敷地外12台(詳細は共用部分の詳細を御覧ください) |
| 管理費等 | 管理費14,150円、修繕積立金2,950円 合計17,100円 |
| 水道基本料 | 380円(従量制) |
| 現況 | 使用中 |
| 設備 | 給湯:電気温水器(未使用期間が長いため、利用可否不明です) |
| 取引形態 | 媒介 |
| 管理会社 | 南信ビルサービス株式会社 |
| その他情報 | 固定資産税38,038円 当物件は複数箇所に傷みや破損、使用感などがございます。 水まわり設備(特に電気温水器)は未点検のため破損している可能性もありますが、そのぶん価格に反映しております。 全面的な改修を前提とした検討を強くお勧めいたします。 館内の天然温泉大浴場がご利用頂けます。 |
| 取引態様 | 媒介 |
※物件情報の掲載日2026/02/17 最終更新日2026/03/02