TEL(9:00-17:30土日祝休)0269-33-3048
〒381-0401 長野県下高井郡山ノ内町大字平穏2831-17
温泉付きマンション ビューパレー志賀高原1DKの売り物件情報です。
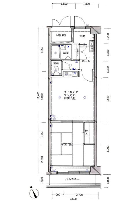
階層は4階、南向きのお部屋です。
間取りは1DKで、ダイニングキッチン8.2帖、和室7帖の間取りです。
それぞれのお部屋は繋がっており、ふすまで仕切ることができる造りになっていますが、
実際には“奥行きがある1部屋”のような間取りです。
面積は41.04u(約12.41坪)で、南向きのお部屋。
バルコニーからは河川敷方面が見える眺望。
高台の上にあるため高低差があり、眺めの良い立地です。
また、バルコニーがあるのが当マンションの特徴でもあります。
お部屋のミニキッチンはコンロは電気ヒーター式、ガスはありません。
給湯は深夜電力による電気温水器です。
洗面台、浴室はユニットバスですが、館内の温泉大浴場もご利用いただけます。
トイレは独立した間取りです。
※館内の温泉大浴場など、共用部分の詳細は『共用部分の詳細はこちら』からご覧ください。
※写真や映像に写っております、家具や家電等の内部備品はお引渡し前に搬出いたします。
間取りの様子をご覧ください。
![]() |
約8.2帖のダイニングキッチン。 奥の和室と一体のお部屋になっており、ふすまで仕切ることができます。 |
![]() |
ミニキッチンがございます。 |
![]() |
ミニキッチン設備の様子。 給湯は深夜電力による電気温水器、コンロは電気ヒーター式です。 ガスはありません。 |
![]() |
7帖の和室。 明るい南向きのお部屋です。 |
![]() |
板間があり、実際には約8帖くらいの面積となります。 |
![]() |
先ほどのダイニングキッチンと合わせた様子。 奥行きがあるお部屋です。 8.2帖+7帖で、15.2帖の空間となります。 |
![]() |
南向きの窓からの眺望。 高台の上に位置し、高低差がありますので眺めの良い立地です。 |
![]() |
バルコニーがあるのが、当マンションの特徴でもあります。 ※バルコニーに汚れがありますが、お引渡し前に洗浄いたします。 |
![]() |
玄関にはクローゼット収納とシューズボックスがあります。 |
![]() |
トイレは独立した間取りです。 |
![]() |
ユニットバス。 洗面と浴槽があります。 もちろん、館内の温泉大浴場もご利用いただけます。 当ページ下部の『共用部分の詳細はこちらです』からご確認ください。 |
![]() |
玄関横のクローゼット収納の様子。 |
![]() |
シューズボックスの様子。 |
| 所在地 | 長野県下高井郡山ノ内町平穏2846-4 |
| 交通 | 長野電鉄「湯田中駅」900m徒歩11分 上信越自動車道「信州中野IC」車20分 |
| 構造規模 | 鉄骨鉄筋コンクリート造15階建 4階部分 |
| 専有面積 | 41.04u(約12.41坪)バルコニー面積3.60u(1.08坪) |
| 総戸数 | 188戸 |
| 築年月 | 1991年11月 |
| 引渡し | 時期:相談(概ね1ヶ月前後) 家具家電類:引き渡し前に搬出します 設備類:現状 |
| 駐車場 | 屋内・外 先着65台 1部屋1台のみ 定住20,000円/年 非定住10,000円 ※共用部分の詳細をご確認下さい。 ※近隣にEV充電対応の月極駐車場がございます。 |
| 管理費 | 9,930円 |
| 修繕積立金 | 6,140円 |
| 水道基本料 | 2,400円(合計18,470円) |
| 現況 | 使用中 |
| 設備 | 給湯:電気温水器 コンロ:電気ヒーター式 照明器具 |
| 取引形態 | 媒介 |
| 管理会社 | 大和ライフリンク株式会社 |
| その他情報 | 固定資産税 56,200円 写真や映像に写っております家具や家電などの内部備品はお引渡し前に搬出いたします。 間取りの様子をご覧ください。 大浴場、プール(夏季のみ)、卓球ルーム、ランドリーコーナー |
※物件情報の掲載日2025/12/1 最終更新日2026/01/26